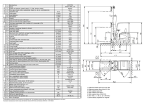
Technický list pro Montini Bingo Zinc 175

Model 2011-2016 Europe EN

Technický list (PDF) Vám bude odeslán po vyplnění e-mailové adresy.

  • originální technický list od výrobce
  • více informací
  • podrobné specifikace

*Pravidla a podmínky

Platí Zásady ochrany osobních údajů společnosti LECTURA GmbH, které také obsahují další informace o možnostech upravení, odstranění a blokování mých dat."

Čelní vysokozdvižné elektrické vozíky Montini Bingo Zinc 175



zobrazit podrobné údaje